Lot 4 - Poplar Cottage, Thorpe Row, Shipdham, Thetford, Norfolk, IP25 7NN

  • Unconditional Online Auction Sale
  • Guide Price* : £175,000 - £195,000 plus fees
  • Bedrooms: 3

BIDDER REGISTRATION APPROVALS CANNOT BE GUARANTEED AFTER 4PM ON TUESDAY 4TH JUNE 2024.

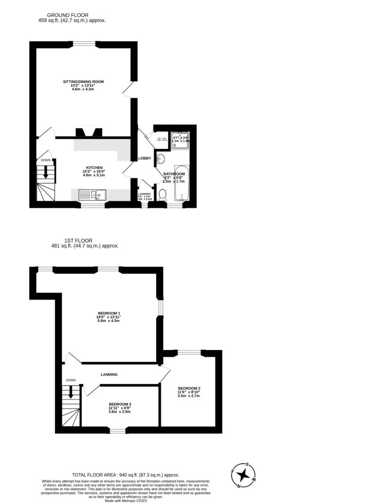
Description

This is a semi detached property is constructed of brick under a pitched main roof and offers well-arranged accommodation on two floors boasting plenty of space. The property has been well maintained for many years but would benefit from further alterations and updating, having scope to extend subject to the necessary planning. Consisting of a large living area, kitchen, extension containing, lobby, bathroom and laundry/storage room. The first floor comprises of three double bedrooms off the landing, all with views over open fields.

Outside is a generous plot that has unspoilt views to the rear and front, a drive way that allows parking for multiple vehicles.

Poplar and Bramble Cottages were originally one farmhouse and there is potential for the two properties to be reunited. Built in the 1830s this was an original Norfolk farmhouse built with the traditional metal ties (as can be seen on photos of each property). The original front door site is now part of Bramble Cottage and the connection to Poplar Cottage was originally at the bottom and also at the top of the main staircase. The extensions were added in the 1970s and built by a local and reputable builder, and both cottages’ extensions were completely reroofed, including gutters and bargeboards, in 2020 by a local roofing specialist.

Services consist of Oil fired central heating, mains water, mains electricity and shared drainage with Bramble Cottage.

Agent's notes:-
(1) The vendors undertake to construct a party wall in the roof space void, such work to be carried out asap & if following completion, on a date to be agreed between the parties.
(2) The pony paddock immediately behind the cottage is potentially available to rent. This 1.5 acre paddock already has fencing and was until recently used as a pony paddock by one of the previous occupants.

Solicitor: Birketts LLP (Attn Michael Playford), 22 Station Road, Cambridge, CB1 2JD. Tel. 01223 643119

Location

The property is located a short drive from the civil parish of Shipdham which benefits from a modern primary school, doctor's surgery and pharmacy, post office, grocery shop, pubs and Bullock Park, an open space for all villagers. The village also has a parish magazine and a range of clubs for children and adults. Shipdham is south of the popular Breckland market town of Dereham, being only 4.1 miles away. Dereham boasts schools for all ages, doctors, dentists, supermarkets and much more. Easy access to the A47 is obtained for access to Norwich.

Directions

Leave Norwich on the A47, leave the A47 arriving into Dereham, take the third exit on the roundabout onto Yaxham Road. At the second set of traffic lights take a left turn onto the A1075 continue for roughly 3.2 miles take a right hand turn signposted to Thorpe Row. Proceed to the junction and turn right onto Thorpe Row the property can be found on the left-hand side just after the agricultural building.

EPC Rating

E

Notes

Buyer Fees: Please note that the successful bidder will be required to pay an Administration Charge of £1,170 inclusive of VAT. This fee is due and payable from the winning bidder immediately after the timed auction ends. The successful bidder will additionally pay over to the auctioneer a deposit of 10% of the purchase price, subject to a minimum of £5,000, after the timed auction ends. All payments to be made by debit card payment or electronic bank transfer to the Brown&Co Client Account, the details of which will be provided by the auctioneer to the successful bidder shortly after the auction ends. Other fees may be payable on completion and will be detailed within the Special Conditions of Sale to be found within the published Auction Pack.

Ability to Buy: This property is being sold under Unconditional Auction Rules creating a legally binding contract at the conclusion of the timed auction. DO NOT bid unless you can complete the sale within 28 days, or on the terms specified within the Special Conditions of Sale.

Help and Assistance: If you have any questions or require any clarification as to the online auction process please contact the auctioneer prior to commencement of the bidding window as we will be unable to enter into any discussions once the auction has started.

Bidding Process: Prior to bidding the bidder will complete a Passport-to-Bid process, which requires registration, verification and agreement to Buyers Terms.

How To Follow the Auction: Use 'Watch' button to follow the auction. If you register to Watch an auction you will receive email notifications of any bidding activity on the specific lot.

How It Works: Unconditional Timed Auction Online: This is a binding method of sale similar to a traditional public property auction. The only difference is the bidding takes place online. The successful purchaser will be required to pay a 10% deposit (subject to a minimum payment of £5,000) on the fall of the virtual gavel and contracts will be exchanged. Bidding for properties online works in a similar fashion to eBay. You can place bids using your PC, tablet or mobile phone and the minimum amount you can bid is defined by the 'bid increment' level. When you place a bid, the property listing page will show you if your bid was successful and whether or not you are the highest bidder. When you are the highest bidder on a property, if another bidder outbids you the system will notify you by email so that you can place another bid if you wish. The major difference from eBay is that our system eradicates sudden death 'bid sniping' through the use of auction 'extension times'. If you have any questions or require any clarification please contact the auctioneer.

Agents Notes: (1) All measurements are approximate and quoted for general guidance only and whilst every attempt has been made to ensure accuracy, they must not be relied upon. (2) Any fixtures, fittings and appliances referred within these published details have not been tested and therefore no guarantee can be given that they are in working order. (3) Internal photographs are reproduced for general information and it is not inferred that any item shown within any picture is included with the property. (4) Photographs shown within these details may have been taken with a camera using a wide-angle lens. (5) These particulars do not form part of any offer or contract and must not be relied upon as statements or representations of fact. (6) In accordance with UK Anti Money Laundering Regulations Intending buyers will be asked to produce original Identity Documentation, Proof of Address and be subjected to an electronic ID verification check before a purchase conveyance is instructed. (7) Brown&Co comply with the General Data Protection Regulation (EU) 2016/679 (“GDPR”) please visit our website www.brown-co.com for our Privacy Statement, Subject Access Requests can be submitted to dataprotectionmanager@brown-co.com . (8) Brown&Co are regulated under the RICS code of conduct. (9) Brown&Co are a member of The Property Redress Scheme, Membership Number: PRS012758 https://www.theprs.co.uk/ (10) Brown&Co is a member of RICS Client Money Protection Scheme, RICS Firm Reference: 016189 (11) Brown&Co-Property And Business Consultants LLP trading as Brown&Co Registered Company Number OC302092. (11) Registered Office Address – The Atrium, St George's Street, Norwich, Norfolk, NR3 1AB

* Generally speaking Guide Prices are provided as an indication of each seller's minimum expectation, i.e. 'The Reserve'. They are not necessarily figures which a property will sell for and may change at any time prior to the auction. Virtually every property will be offered subject to a Reserve (a figure below which the Auctioneer cannot sell the property during the auction) which we expect will be set within the Guide Range or no more than 10% above a single figure Guide.

Loading the bidding panel...

Make an Enquiry

Submit an enquiry and someone will be in contact shortly.

 
*  
*  
*
*
*
Finance Available | Enquire Here

Additional Documents

Related Documents

Share