Lot 1 - 32 Mattishall Road, East Tuddenham, Dereham, Norfolk, NR20 3LS

  • Unconditional Online Auction Sale
  • Guide Price* : £225,000 - £235,000 plus fees
  • Bedrooms: 2

Description

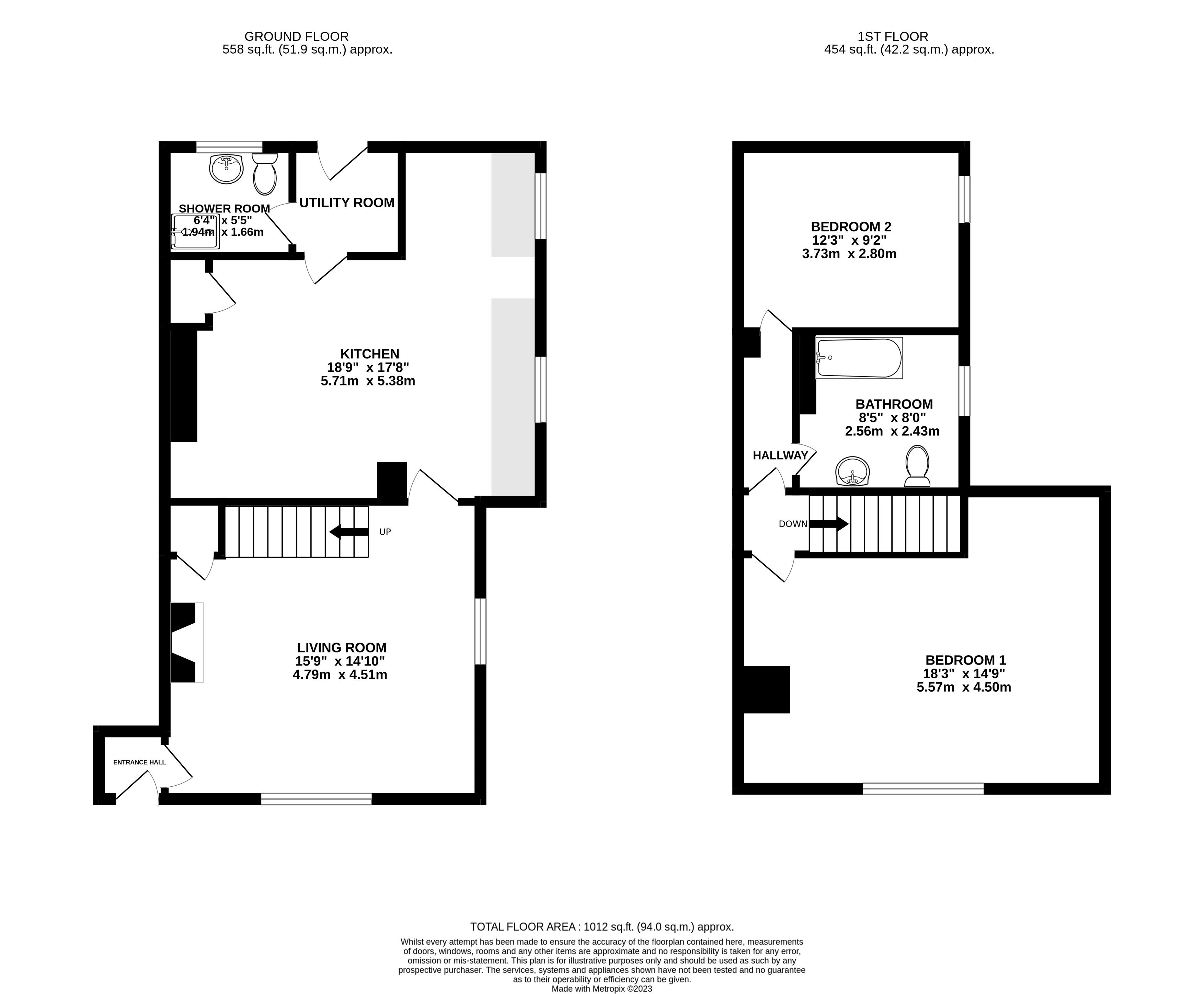
A semi-detached house constructed of traditional brick with a pitched roof and extended at the rear. Occupying a good plot of land with garage and outside store room.

The property offers well arranged accommodation on two floors and features and open plan kitchen/dining room, sitting room and shower room on the ground floor, with two double bedrooms and bathroom on the first floor.

Outside, the property is approached at the front and the drive leads past the side of the property to the garage. The gardens are mainly laid to lawn.

Buyers should satisfy themselves as to the availability of services.

Please note: It is the intention of the seller to impose an overage clause in respect of access leading to back land at the rear in the event that there was any development in the future.

Solicitor: Leathes Prior (Alison Beales), 74 The Close, Norwich, NR1 4DR. Tel 01603 610911

Location

The property is situated in the popular village of East Tuddenham, which is within easy reach of Norwich, the University and Norfolk & Norwich Hospital via the A47 trunk road.

Directions

From Norwich, take the A47 towards Dereham/Swaffham and after passing St Peter's Church turn left at the next roundabout onto Mattishall Road, following signposts for Honingham/Mattishall. Continue along the road for a few miles until reaching East Tuddenham and the house will be found on the right hand side, just before Bull Close on the left.

Energy Rating

D

Notes

Buyer Fees: Please note that the successful bidder will be required to pay an Administration Charge of £1080 inclusive of VAT. This fee is due and payable from the winning bidder immediately after the timed auction ends. The successful bidder will additionally pay over to the auctioneer a deposit of 10% of the purchase price, subject to a minimum of £5,000, after the timed auction ends. All payments to be made by debit card payment or electronic bank transfer to the Brown&Co Client Account, the details of which will be provided by the auctioneer to the successful bidder shortly after the auction ends. Other fees may be payable on completion and will be detailed within the Special Conditions of Sale to be found within the published Auction Pack.

Ability to Buy: This property is being sold under Unconditional Auction Rules creating a legally binding contract at the conclusion of the timed auction. DO NOT bid unless you can complete the sale within 28 days, or on the terms specified within the Special Conditions of Sale.

Help and Assistance: If you have any questions or require any clarification as to the online auction process please contact the auctioneer prior to commencement of the bidding window as we will be unable to enter into any discussions once the auction has started.

Bidding Process: Prior to bidding the bidder will complete a Passport-to-Bid process, which requires registration, verification and agreement to Buyers Terms.

How To Follow the Auction: Use 'Watch' button to follow the auction. If you register to Watch an auction you will receive email notifications of any bidding activity on the specific lot.

How It Works: Unconditional Timed Auction Online: This is a binding method of sale similar to a traditional public property auction. The only difference is the bidding takes place online. The successful purchaser will be required to pay a 10% deposit (subject to a minimum payment of £5,000) on the fall of the virtual gavel and contracts will be exchanged. Bidding for properties online works in a similar fashion to eBay. You can place bids using your PC, tablet or mobile phone and the minimum amount you can bid is defined by the 'bid increment' level. When you place a bid, the property listing page will show you if your bid was successful and whether or not you are the highest bidder. When you are the highest bidder on a property, if another bidder outbids you the system will notify you by email so that you can place another bid if you wish. The major difference from eBay is that our system eradicates sudden death 'bid sniping' through the use of auction 'extension times'. If you have any questions or require any clarification please contact the auctioneer.

Agents Notes: (1) All measurements are approximate and quoted for general guidance only and whilst every attempt has been made to ensure accuracy, they must not be relied upon. (2) Any fixtures, fittings and appliances referred within these published details have not been tested and therefore no guarantee can be given that they are in working order. (3) Internal photographs are reproduced for general information and it is not inferred that any item shown within any picture is included with the property. (4) Photographs shown within these details may have been taken with a camera using a wide-angle lens. (5) These particulars do not form part of any offer or contract and must not be relied upon as statements or representations of fact. (6) In accordance with UK Anti Money Laundering Regulations Intending buyers will be asked to produce original Identity Documentation, Proof of Address and be subjected to an electronic ID verification check before a purchase conveyance is instructed. (7) Brown&Co comply with the General Data Protection Regulation (EU) 2016/679 (“GDPR”) please visit our website www.brown-co.com for our Privacy Statement, Subject Access Requests can be submitted to dataprotectionmanager@brown-co.com . (8) Brown&Co are regulated under the RICS code of conduct. (9) Brown&Co are a member of The Property Redress Scheme, Membership Number: PRS012758 https://www.theprs.co.uk/ (10) Brown&Co is a member of RICS Client Money Protection Scheme, RICS Firm Reference: 016189 (11) Brown&Co-Property And Business Consultants LLP trading as Brown&Co Registered Company Number OC302092. (11) Registered Office Address – The Atrium, St George's Street, Norwich, Norfolk, NR3 1AB

* Generally speaking Guide Prices are provided as an indication of each seller's minimum expectation, i.e. 'The Reserve'. They are not necessarily figures which a property will sell for and may change at any time prior to the auction. Virtually every property will be offered subject to a Reserve (a figure below which the Auctioneer cannot sell the property during the auction) which we expect will be set within the Guide Range or no more than 10% above a single figure Guide.

Loading the bidding panel...

Finance Available | Enquire Here

Viewing

Please call us for viewing arrangements.

;

Additional Documents

Related Documents

Share